Offerte anfragen
stein, keramik & fliesen

Präzises Wasserstrahlschneiden für Stein, Keramik & Fliesen

Granit, Marmor, Feinsteinzeug oder technische Keramik: Mit Wasserstrahl entstehen detailgetreue Konturen ohne Risse oder Ausbrüche – ideal für Architektur, Design und technische Anwendungen.

Darum ist Wasserstrahlschneiden ideal für Stein, Keramik & Fliesen

Bruchfreie Bearbeitung

Keine Risse, keine Ausbrüche – selbst bei spröden Materialien.

Exakte Formen in Hartgestein

Von Granit über Marmor bis zu Feinsteinzeug – höchste Präzision.

Dekorative Präzision

Ideal für Design, Architektur und individuelle Formgebungen.

Fertigungsprozess

So entsteht aus einer Zeichnung ein hochpräzises Werkstück – Schritt für Schritt zum fertigen Ergebnis.

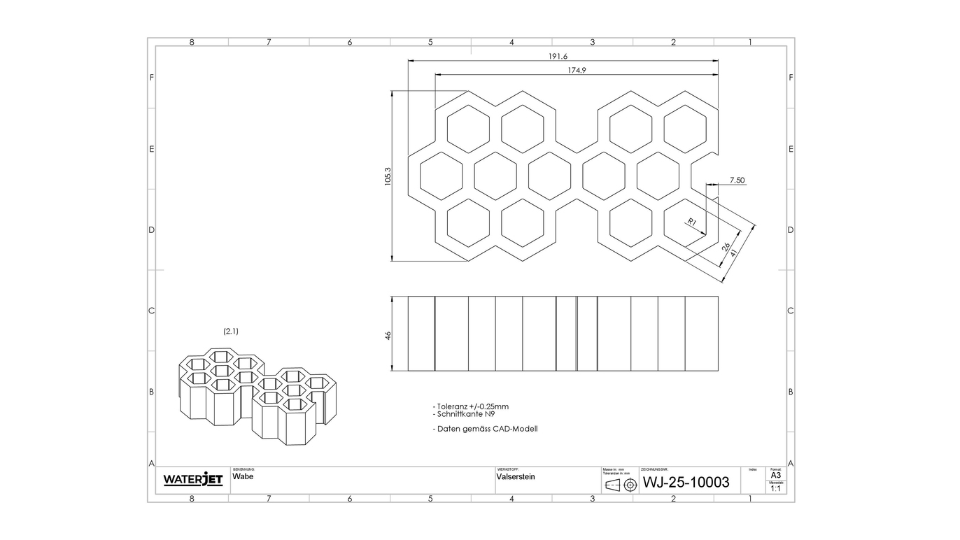
Zeichnung

Wabenförmige Konturgeometrie mit definierten Stegbreiten – Toleranzvorgabe ± 0.25 mm.

 

Rohmaterial

  • Material: Valserstein 
  • Dicke: 46 mm

Schneidvorgang

Tiefdruck-Einstechen zur Schonung des spröden Materials, anschliessend präziser Wasserstrahlschnitt (Schnittkante N9).

Ergebnis

Saubere, ausbruchfreie Kanten und klare Konturen – formstabil im Endzustand.

Technische Möglichkeiten im Überblick

Unsere Technologie steht für Präzision, Qualität und Vielseitigkeit. Die folgenden Werte zeigen, wie exakt, sauber und flexibel Wasserstrahlschneiden ist – selbst bei anspruchsvollsten Anforderungen.

Präzision

  • Allgemeintoleranz

    ± 0.1 mm (Garantiert ± 0.2 mm)

  • Formtoleranz

    ± 0.1 mm

  • Positionsgenauigkeit

    ± 0.005 mm

  • Wiederholgenauigkeit

    ± 0.1 mm

  • Schnittspalt

    ab 0.2 mm

  • Schnittwinkelfehler

    0–1°

  • Minimaler Radius

    0.1 mm

Schnittmöglichkeiten

  • Konturen

    2D-, 2.5D- und 3D-Schnitte 

Schnittqualität

  • Oberflächengüte

    bis N7 (Ra 1.6)

  • Eigenschaften

    Gratarm, materialschonend, ohne thermische Einflüsse

Weitere Hinweise

  • Dateiformate

    DXF, STEP, PDF, etc.

  • Nachbearbeitung

    Zahlreiche Optionen möglich

    Kontaktieren Sie uns für die passende Lösung

  • Lieferzeiten

    Standard 1-2 Wochen

    Schnellere Termine gerne auf Anfrage 

Die aufgeführten Werte dienen zur Orientierung.
Je nach Material, Dicke, Geometrie und Schneidstrategie können die Werte leicht variieren.

Auswahl typischer Werkstoffe

Von alltäglich bis aussergewöhnlich: Typische Steine, Keramiken und Fliesen, die wir regelmässig schneiden – stellvertretend für viele weitere.
Naturstein
  • Granit, Marmor
  • Sandstein, Kalkstein
  • Schiefer
Keramik
  • Technische Keramik (z.B. Al₂O₃, Si₃N₄)
  • Boden- und Wandfliesen
  • Porzellan
Kunststein & Spezialmaterialien
  • Betonwerkstein
  • Terrazzo
  • Quarzkompositplatten
Ein Projekt am Limit der Machbarkeit?
Wir machen es möglich!

Von Metallen bis Meteoriten:
Wasserstrahlschneiden ohne Grenzen

Inspiration für individuelle Projekte